GK Formteile aus unserer Fertigung -- Sie Wünschen, wir falten
Gipskartonfaltteile jeder Art Faltungen planen
- Die Falttechnik und Klebetechnik bei GK Faltungen neu erleben GK Faltung herstellen

Form und GK Faltteile ( Rigips Falttechnik )
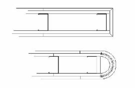
Zuschnitte mit V Fräsungen, Klebetechnik, Eck Faltungen mit PS für Laibungen, Rohrverkofferungen , Deckenaufkantungen, Zierprofile in Falttechnik Rundschnitte, Segmentschnitte , gebogene Aufkantungen ,




Deckensegel

Schlitztechnik und Falttechnik bei GK Rundsäulen und Lichtkuppelverkleidungen, Wände,Wandenden
- Zuschnitte von Gipskarton bis PROMAT
Zuschnitte Gipskarton, Einlagen Fermacell, Gipsriegel , Promatzuschnitte vorgefertigte Brandschutzverkleidungen
Trockenbauhandel

Gipskarton, Profile, Akustikdecken , Gipskartonfaltteile , runde Gipsfomteile, Rundsäulen GK, Deckenränder rund, Gipsriegel, GK Festverglasung , Zubehör Trockenbau , Sanitärtragständer
Trockenbau
Trockenbauarbeiten durch unsere Partner nur noch im Raum Crailsheim und Schwäbisch Hall
Metallständerwände , Abgehängte Deckensysteme
Bautechnischer Brandschutz Abschottungen
Fachverleger PROMAT
Fachverleger HILTI
- Fachbetrieb für die Herstellung von Gipskarton Faltungen und Formteile
